
- Model: VK-SPAF
- Způsob měření: Šnekové měření a podávání
- Hmotnostní rozsah: 50-500g
- Přesnost: 2 %
- Rychlost: 10-30 lahví/min
- Napětí: 220V (přizpůsobitelné)
- Zásobník: 25L
- Plnicí trysky: 10 mm (další pro 15 mm, 18 mm, 20 mm, 25 mm)
- Výkon: 1,2 kW
- Hmotnost GN: 230/200 kg
- Rozměr: 800×850×2000 mm
Tento stroj na plnění prášku je kompletně vyroben z nerezové oceli, plnicí systém je poháněn servomotorem a pro míchací motor je použit bezúdržbový reduktor vyrobený z Tchaj-wanu, skříň produktu je specifikována jako plně uzavřená, klapka s regulací tlaku vzduchu, vyrobena z nerezové oceli ocel a sklo. Odsávací zařízení je namontováno v ústí plnicí trubky, určené pro opakovaně použitelný pracovní stůl výškově nastavitelné, se zásuvkou na odpad pod stolem.
Hlavní vlastnosti strojů na plnění dětského mastku Poloautomatické


Vyrobeno z nerezové oceli: zcela se přizpůsobí požadavkům GMP nebo jiné certifikaci hygieny potravin vhodné pro balení korozivních chemikálií;
Lepší stabilita plnění a vyšší přesnost vážení;
Plnicí systém je poháněn krokovým motorem, vysoká přesnost, vysoký točivý moment, dlouhá životnost a nastavitelné otáčky;
Tchajwanský bezúdržbový reduktor se používá pro míchání motoru: nízká hladina hluku, dlouhá životnost, bezúdržbová po celou dobu životnosti;
Navrženo pro pracovní podmínky, které lze kdykoli změnit;
Pro pozdější použití lze uložit max. 10 receptů;
Kontaktní materiál ocel je potravinářská nerez 304;
Skříň produktu je plně uzavřená, řízená vlhkým vzduchem a vyrobena ze skla s nerezovou ocelí, pohyb produktu ve skříni je na první pohled jasný, žádný únik prášku, zařízení na odsávání prachu namontované v ústí plnicí trubice vede k čistému prostředí závodu;
Díky výměně příslušenství je stroj vhodný pro více produktů, bez ohledu na super jemný výkon nebo velké zrno.
Specifikace šnekového měřicího stroje na plnění prášku
| Model | VK-SPAF |
| Způsob měření | Šnekové měření a podávání |
| Hmotnostní rozsah | 50-500 g |
| Přesnost | 2% |
| Rychlost | 10-30 lahví/min |
| Napětí | 220V (přizpůsobitelné) |
| Hopper | 25L |
| Plnicí trysky | 10 mm (další pro 15 mm, 18 mm, 20 mm, 25 mm) |
| Moc | 1,2 kW |
| Hmotnost GN | 230/200 kg |
| Velikost | 800×850×2000 mm |
Ilustrace Prášek Plnicí Stroj


Podrobnosti


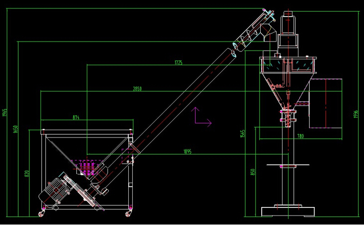
Nakládání a podavač materiálu se šroubem výtahu

Instalace pro podávání a nakládání materiálů
dvousměrný spínač; rotace vpřed / vzad pro podávání materiálů a vykládání materiálů ze spodního výstupu.
Hřídelovou spojku reduktoru nelze zablokovat. Hřídelová spojka by měla být po montáži napnutá a pružná, aby nedošlo k popálení z přetížení v motoru. Během instalace lze šroub příruby správně nastavit.
Konec čepu šneku by nikdy neměl být upevněn příliš těsně, aby se rotující šnek nedotýkal stěny trubky v důsledku ohnutého šneku. Zašroubujte prosím matici pro upevnění kolíku, abyste jej zafixovali. Pokaždé, když je šnek vytažen za účelem čištění a opětovné instalace, je třeba zvážit tento bod.
Objem a výšku elevátoru lze integrovat s balicím strojem pomocí sériové indukce. Bez materiálů v nádrži není žádné podávání materiálů z výtahu.
Výtahový spoj pracuje se strojem na plnění prášku, automaticky se podává a zastavuje.
Technický Parametr Pro Výtah

| Přenos hlasitosti | 1 mil3/hodina (integrováno s plnicím strojem) |
| násypka | 100L |
| Zvedací výška | 2000 mm |
| Výkon motoru | 1,5 kW |
| Napájení | 380V/50-60Hz |
| Výška mezi násypkou a zemí | 800-900 mm |
| Značka motoru | Juli |
| Materiály násypky | SS304, tloušťka 1,50 mm |
| Potrubí pro dopravu krmných surovin | SS304, Průměr: 103 mm, Tloušťka: 3,00 mm |
| Auger | SS304, tloušťka 3,00mm |
| Hřídel | SS304, Průměr 35mm |
| Hmotnost | 150KG |
| Velikost | 1900*880*2100mm (přizpůsobitelné) |
Záruka: Na všechny stroje se vztahuje záruka 1 rok. (Ze záruky jsou vyloučeny problémy způsobené nehodami, nesprávným použitím, nesprávným použitím, poškozením při skladování, nedbalostí nebo úpravou zařízení nebo jeho součástí. Záruka není zahrnuta ani na snadno rozbitný náhradní díl)
Instalace: Poté, co stroj dorazí do vaší továrny, pokud budete potřebovat, přijede k vám náš technik, aby nainstaloval a otestoval stroj a také zaškolil vašeho pracovníka k obsluze stroje (doba školení závisí na vašem pracovníkovi). Výdaje (letenka, jídlo, hotel, cestovní poplatek ve vaší zemi) by měly být na vašem účtu a musíte zaplatit za technika 150 USD za den. Také můžete jít do naší továrny absolvovat školení.
Po servisu: Pokud se problém objeví na stroji, náš technik se k vám co nejdříve dostaví, aby stroj opravil. Náklady by měly být na vašem účtu (jak je uvedeno výše).









